Description
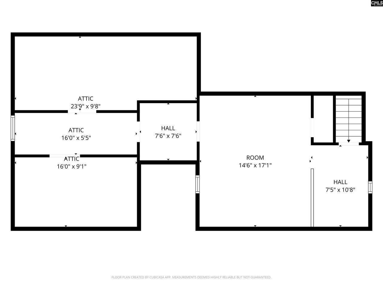
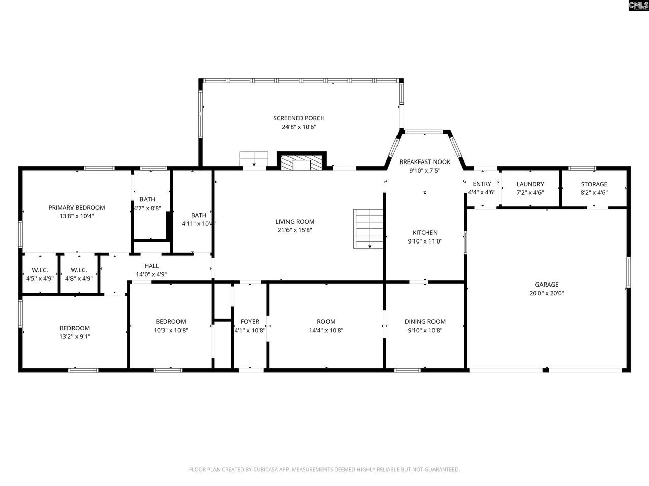
Incredible opportunity in the heart of Lexington!Remodeled 122 Old Chapin Rd, ±1.09-acre site with garage and extra building on the rear of the property, just off Sunset Blvd (US-378)—one of Lexington’s highest-traffic corridors.Located in the Town of Lexington, this space at 122 Old Chapin Rd offers excellent visibility, accessibility, and proximity to retail, medical, and professional offices.Currently zoned Residential, the seller and buyer will rezone after an intended use is established. Disclaimer: CMLS has not reviewed and, therefore, does not endorse vendors who may appear in listings.
-
0BEDS
-
1.09ACRES
-
0BATHS
-
01/2 BATHS
-
2,086SQFT
-
$1$/SQFT
School Ratings & Info
Description
Incredible opportunity in the heart of Lexington!Remodeled 122 Old Chapin Rd, ±1.09-acre site with garage and extra building on the rear of the property, just off Sunset Blvd (US-378)—one of Lexington’s highest-traffic corridors.Located in the Town of Lexington, this space at 122 Old Chapin Rd offers excellent visibility, accessibility, and proximity to retail, medical, and professional offices.Currently zoned Residential, the seller and buyer will rezone after an intended use is established. Disclaimer: CMLS has not reviewed and, therefore, does not endorse vendors who may appear in listings.
© 2026 Consolidated Multiple Listing Service, Inc. All rights reserved. IDX information is provided exclusively for consumers' personal, non-commercial use and may not be used for any purpose other than to identify prospective properties consumers may be interested in purchasing. Information is deemed reliable but is not guaranteed accurate by the MLS or Melody Branham | Realty One Group Bluffton. Data last updated: 2026-04-22T18:40:29.737.
