Description
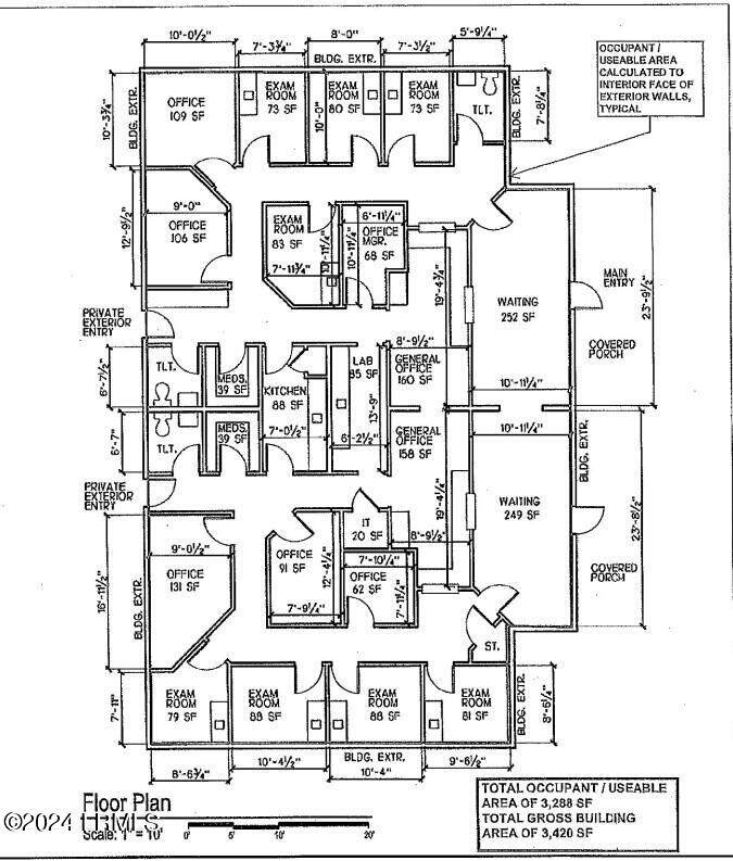
Available 05/01/2025. Excellent office/retail lease opportunity in Port Royal's only business park. This 3,420sf office is the 2nd standalone building on the left as you come into the popular Belleview Business Park. The office is currently set up with 8 exam rooms, triage & ultrasound rooms, a kitchen/break room, a lab, 2 storage rooms, 2 offices, 3 bathrooms, and a large reception area & lobby. The exterior was repainted in December of 2022, and the roof was just replaced (01/2023). According to data from Esri, the 2024 population within a 10-mile radius is 82,545 and is expected to grow to 86,874 by 2029. In addition, the average household income is $120,092, and this is expected to grow to $139,618 by 2029. The existing women's healthcare medical practice is moving into a building 4X this size since their practice has done so well at this location. So, this is a great place to start your practice or move your practice to if you're looking to expand. This is offered as a NNN lease and as of 4/2024 the net portion is calculated to be $3.88/sf/yr.
-
0BEDS
-
0.08ACRES
-
0BATHS
-
01/2 BATHS
School Ratings & Info
Description
Available 05/01/2025. Excellent office/retail lease opportunity in Port Royal's only business park. This 3,420sf office is the 2nd standalone building on the left as you come into the popular Belleview Business Park. The office is currently set up with 8 exam rooms, triage & ultrasound rooms, a kitchen/break room, a lab, 2 storage rooms, 2 offices, 3 bathrooms, and a large reception area & lobby. The exterior was repainted in December of 2022, and the roof was just replaced (01/2023). According to data from Esri, the 2024 population within a 10-mile radius is 82,545 and is expected to grow to 86,874 by 2029. In addition, the average household income is $120,092, and this is expected to grow to $139,618 by 2029. The existing women's healthcare medical practice is moving into a building 4X this size since their practice has done so well at this location. So, this is a great place to start your practice or move your practice to if you're looking to expand. This is offered as a NNN lease and as of 4/2024 the net portion is calculated to be $3.88/sf/yr.
© 2025 Lowcountry Regional Multiple Listing Service. Information is deemed reliable but not guaranteed. Information is provided exclusively for the consumer's personal, non-commercial use, and may not be used for any purpose other than to identify prospective properties consumers may be interested in purchasing.
Data last updated: 2025-12-05T00:12:25.29.