Description
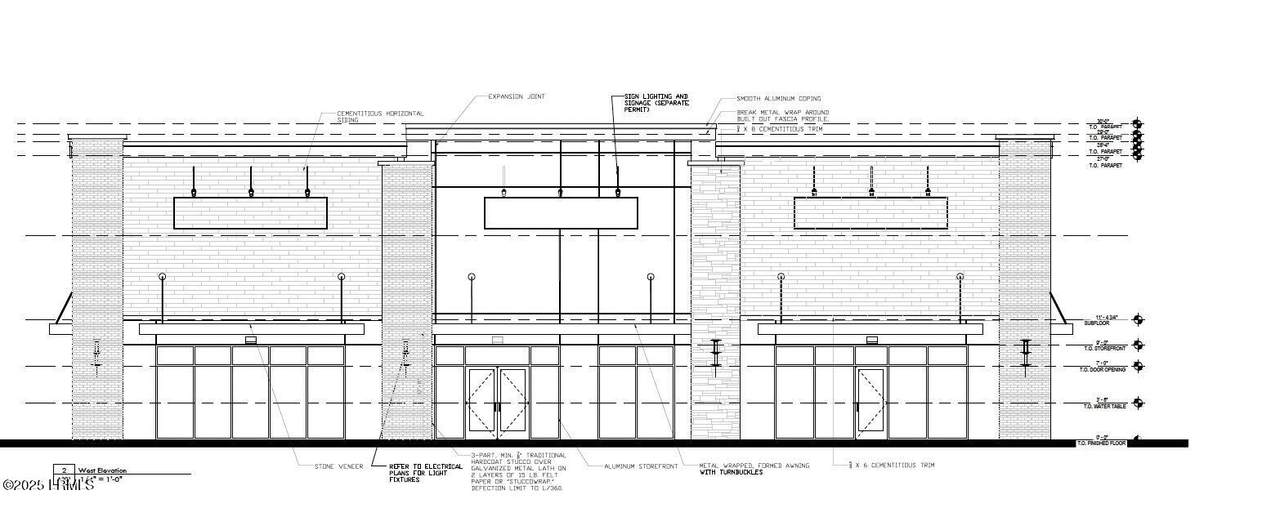
Prime Buckwallter Parkway location. Building A has 1500 sqft of white box space available for lease. Building B has 4500 sqft of shell space available for lease with ribbon slab. The buildings are currently under construction. Zoning is Light Industrial in the Town of Bluffton. Plenty of parking planned and utilities being brought to the buildings. Each leasable space will have restroom, 1 1/2'' water line, 120/280 Volt 3 phase power and 18' clear height to structural frame above. Brick columns, stucco, tabby water table, wood plank siding, with storefront windows and metal awnings. Construction to be completed June 1, 2025.
-
0BEDS
-
1.5ACRES
-
0BATHS
-
01/2 BATHS
School Ratings & Info
Description
Prime Buckwallter Parkway location. Building A has 1500 sqft of white box space available for lease. Building B has 4500 sqft of shell space available for lease with ribbon slab. The buildings are currently under construction. Zoning is Light Industrial in the Town of Bluffton. Plenty of parking planned and utilities being brought to the buildings. Each leasable space will have restroom, 1 1/2'' water line, 120/280 Volt 3 phase power and 18' clear height to structural frame above. Brick columns, stucco, tabby water table, wood plank siding, with storefront windows and metal awnings. Construction to be completed June 1, 2025.
© 2025 Lowcountry Regional Multiple Listing Service. Information is deemed reliable but not guaranteed. Information is provided exclusively for the consumer's personal, non-commercial use, and may not be used for any purpose other than to identify prospective properties consumers may be interested in purchasing.
Data last updated: 2025-12-05T00:12:25.29.